154 sqm / 1658 sqft
232 sqm / 0.05 acres
Semi-detached house
5 beds, 1 recep, 3.5 bath
Garage & carport
2015 - Freehold
EPC - B / 89
Council tax band - F

A well-presented semi-detached townhouse offering spacious accommodation over three floors on a desirable corner plot close to the Country Park, featuring a recently refitted high-quality kitchen, bright dual-aspect living room, principal suite with en-suite, garage/carport, driveway and enclosed garden.


The property is one of a pair, positioned on the corner of Hereward Road and Charger Road, and enjoys dual aspects to many of the rooms, allowing an abundance of natural light throughout.


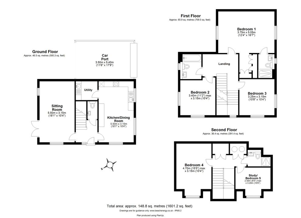
The home is entered via a storm porch leading into a welcoming entrance hall, with stairs rising to the first floor with custom storage underneath and a cloakroom fitted with a modern white two-piece suite.


The open-plan kitchen/dining room has recently been refitted to a high standard, now offering an excellent range of additional storage units, quality work surfaces and a comprehensive selection of new, integrated appliances, creating a stylish and practical space for everyday living and entertaining. A separate utility room to the rear provides further units, an additional sink and an integrated washer/dryer.

A well-presented semi-detached townhouse offering spacious accommodation over three floors on a desirable corner plot close to the Country Park, featuring a recently refitted high-quality kitchen, bright dual-aspect living room, principal suite with en-suite, garage/carport and enclosed garden.


To the first floor, a spacious landing leads to two well-proportioned double bedrooms, a family bathroom, and the principal suite, which benefits from a dressing room fitted with a range of wardrobes and an en-suite shower room with a modern white three-piece suite.


The second floor landing is fitted with a range of built-in cupboards and leads to two further bedrooms, comprising a generous double and a good-sized single currently used as a study. A shower room, again fitted with a modern white three-piece suite, completes the accommodation. The loft has been boarded to provide additional storage.


Outside, the property enjoys a corner plot with frontage extending to both the front and side, attractively planted with a variety of mature shrubs, trees and retaining railings. A block-paved driveway provides access to the garage fitted with a Hormann sectional door. An additional parking space has been added to the rear of the property.


The rear garden is fully enclosed and partially walled, featuring a patio area, lawn and well-stocked herbaceous borders. A mature wisteria creates a striking focal point, while additional benefits include a large timber shed, external lighting and an outside tap.


Trumpington is a thriving, fast growing part of the city that still manages to retain its village identity and sense of community. It is exceptionally well located for access into the Addenbrooke's campus, out to the M11 and into the city by car, bus, guided bus, one of a few purpose-built cycle routes, or even an enthusiastic walk. The city's mainline station can be easily reached along the guided busway cycleway without having to mix with car traffic at all and Cambridge South Station is due to open in 2026.


The area has three primary schools and a brand new state-of-the-art secondary school built in 2016 with excellent sporting facilities. Many of the city's finest private schools are within easy cycling distance. There are also various restaurants, pubs, shops, a post office, barber, GP surgery, pharmacy, library and community centre. There is a major Waitrose supermarket and a Sainsbury's local.


Trumpington Meadows nature reserve links Trumpington through to Byron's Pool and Grantchester and there is a second country park between Trumpington and the Addenbrooke's campus. Various bridleways and footpaths lead immediately out into the countryside towards Harston, Haslingfield, Barton and Grantchester.