115 sqm / 1240 sqft
87 sqm / 0.03 acre
Mid terraced house
4 bed, 1 recep, 2.5 bath
Allocated parking
2015- freehold
EPC - B / 90
Council tax band - E

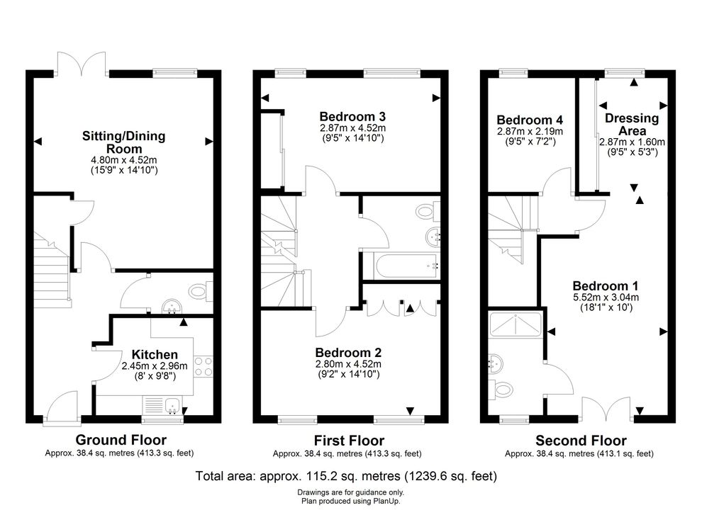
Located on Charger Road in the sought-after area of Trumpington, this well-presented three-storey home offers approximately 115.2 square metres (1239.6 square feet) of thoughtfully arranged living space. The ground floor features a spacious sitting/dining room measuring 4.80m x 4.52m (15'9" x 14'10"), ideal for family gatherings and entertaining. To the front of the property, the kitchen is a practical space at 2.45m x 2.96m (8' x 9'8"), complemented by a convenient downstairs WC off the central hallway.


The first floor comprises two generously sized bedrooms. Bedroom 2 measures 2.80m x 4.52m (9'2" x 14'10"), while Bedroom 3 offers 2.87m x 4.52m (9'5" x 14'10"). A centrally located family bathroom with a full suite completes the first-floor layout.


On the second floor, the master bedroom provides a peaceful retreat with its generous proportions at 5.52m x 3.04m (18'1" x 10'), along with a private en suite bathroom. This floor also includes Bedroom 4, measuring 2.87m x 2.19m (9'5" x 7'2"), and a dressing area of 2.87m x 1.60m (9'5" x 5'3"), offering flexible use for storage or a home office setup.


This property combines spacious accommodation with a practical layout, making it an excellent choice for families or professionals seeking a home in a desirable Cambridge suburb.

A spacious and well-designed four-bedroom home on Charger Road, Trumpington, offers modern living across three floors with a total area of approximately 1,240 sq. ft. Available with the benefit of no onward chain.


The area has three primary schools and a brand new state-of-the-art secondary school built in 2016 with excellent sporting facilities. Many of the city's finest private schools are within easy cycling distance. There are also various restaurants, pubs, shops, a post office, barber, GP surgery, pharmacy, library and community centre. There is a major Waitrose supermarket and a Sainsbury's local.


Trumpington Meadows nature reserve links Trumpington through to Byron's Pool and Grantchester and there is a second country park between Trumpington and the Addenbrooke's campus. Various bridleways and footpaths lead immediately out into the countryside towards Harston, Haslingfield, Barton and Grantchester.