125 sqm / 1352 sqft
121 sqm / 0.03 acre
Terraced townhouse
4 beds, 2 recep, 2 bath
Garage & driveway parking
2018 – freehold
EPC - B / 85
Council tax band – D

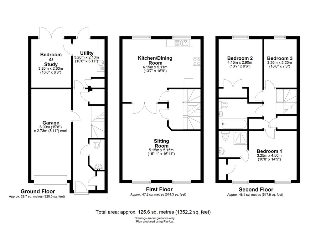
Set across three floors, this versatile property offers well-proportioned and flexible accommodation ideal for modern family living. The ground floor features a welcoming entrance hall with stylish 'Amtico' flooring, two storage cupboards, and internal access to the integral garage.


To the rear, a practical utility room with fitted units, sink, and garden access sits alongside a cloakroom and a fourth bedroom or study – perfect for home working or guests. French doors from this room open directly onto the low-maintenance rear garden.


On the first floor, the property continues to impress with a bright and spacious sitting room with dual windows to the front. At the rear, the kitchen/dining room is well-appointed with fitted units, integrated appliances, and ample space for dining, all overlooking the garden.


The top floor hosts three well-proportioned bedrooms, including a generous master suite with built-in wardrobes and an ensuite shower room. Two further bedrooms share a modern family bathroom with partially tiled walls and a clean, contemporary finish.

A deceptively spacious and beautifully presented three/four bedroom home, situated in one of Cambridgeshire’s most desirable villages. No Onward Chain


There is also a garage with driveway parking nearby and a small annual fee of £122.50 for maintaining the local green spaces.


?????Burwell is a highly sought-after village, ideally placed for the horse racing towns of Newmarket (5 miles) and Cambridge (13 miles). The village benefits from a regular bus service and has a range of facilities including doctors' surgery, petrol station, bank, Post Office, church, public houses and a good range of shops. There is a regular train service from Newmarket to Cambridge and London's Liverpool Street and King's Cross Stations. Burwell lies within the catchment for both Bottisham Village College and Soham Village College secondary schools, rated Outstanding and Good respectively by Ofsted. Residents are spoilt for choice for picturesque routes to enjoy, with riverside walks along the Burwell Lode out towards Reach and Wicken Fen, Spring Close, Priory Wood and Devils Dyke to name a few. Just a short drive away is Anglesey Abbey National Trust, which is also within cycling range along the Lodes Way cycle route from Burwell